Οριστικό τέλος σε καταπάτηση δεκαετιών στην παραρεμάτια ζώνη – Άνοιξε ο δρόμος για τις αστικές αναπλάσεις του Cultural Hidrant

Τμήμα της παραρεμάτιας ζώνης, έκτασης πάνω από 680 τ.μ., δίπλα στο 6ο Γυμνάσιο Χαλανδρίου, το οποίο παρέμενε επί δεκαετίες καταπατημένο, απελευθερώθηκε επιτέλους, την 1η Φεβρουαρίου, με τη διαδικασία της διοικητικής αποβολής.

Χρειάστηκε να ακολουθηθεί μια επώδυνη γραφειοκρατική διαδικασία πολλών ετών και τελικά να εκδοθεί και να εκτελεστεί πρωτόκολλο διοικητικής αποβολής του καταπατητή από τον δημόσιο χώρο, μιας και όλες οι προσπάθειες συναινετικής διευθέτησης είχαν αποτύχει.

Παρουσία του δημάρχου Χαλανδρίου Σίμου Ρούσσου, των αντιδημάρχων Τεχνικής Υπηρεσίας Έλενας Χριστούλη και Πρασίνου Κώστα Ευθυμίου, της δικηγόρου του Δήμου Εβίτας Κακούρη, εκπροσώπου του Συλλόγου της Ρεματιάς, δικαστικών επιμελητών και αστυνομικών οργάνων, πραγματοποιήθηκε η αποβολή των καταπατητών, με ξήλωμα παράνομων περιφράξεων και γκρέμισμα μαντρότοιχων μέσα στο δημόσιο χώρο.

Σίμος Ρούσσος, δήμαρχος Χαλανδρίου: «Ο Δήμος υπερασπίζεται στην πράξη τους δημόσιους χώρους και τη νομιμότητα»

«Μετά από δεκαετίες ένας δημόσιος χώρος που παρέμενε καταπατημένος, απελευθερώθηκε επιτέλους. Δεδομένου ότι δεν ευοδώθηκε η διαδικασία συναινετικής διευθέτησης, αναγκαστήκαμε να ακολουθήσουμε την επώδυνη και γραφειοκρατική διαδικασία της διοικητικής αποβολής. Διαδικασία την οποία ακολουθήσαμε τόσο στην περίπτωση του κυλικείου του Κοιμητηρίου, όσο και στην περίπτωση του ακινήτου του Δήμου, επί των οδών Ηρακλείτου και Ιόλης, στο Πάτημα, που επίσης είχε παρανόμως καταληφθεί για χρόνια από εργοληπτικές εταιρίες με την ανοχή του Δήμου. Οι γνωστοί και άγνωστοι καταπατητές της δημόσιας περιουσίας, γνωρίζουν πλέον καλά ότι ο δήμος Χαλανδρίου υπερασπίζεται στην πράξη το δημόσιο χώρο και τη νομιμότητα», σημείωσε ο δήμαρχος Χαλανδρίου Σίμος Ρούσσος.

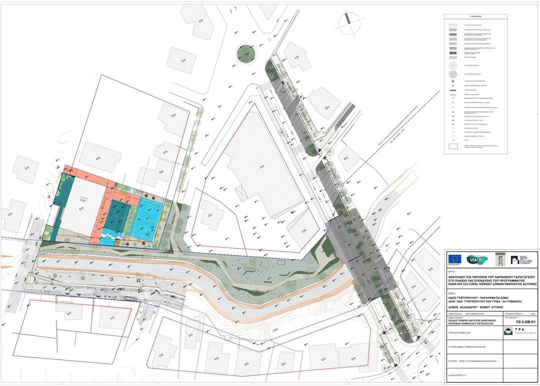
Ανοίγει ο δρόμος για τις αναπλάσεις του Cultural Hidrant

Με το άνοιγμα της πρόσβασης στη Ρεματιά από την οδό Βουλγαροκτόνου και την απελευθέρωση του δημόσιου χώρου, έκλεισε μια ακόμα εκκρεμότητα που δημιουργούσε εμπόδια στην προώθηση της ευρύτερης ανάπλασης της περιοχής, μέσω του προγράμματος Cultural Hidrant, για την ανάδειξη του Αδριάνειου Υδραγωγείου.

Ο παραρεμάτιος πεζόδρομος, δίπλα στο 6ο Γυμνάσιο, που προβλεπόταν από το ρυμοτομικό σχέδιο του 1958!, θα υλοποιηθεί τελικά μέσω των έργων αναπλάσεων του προγράμματος Cultural Hidrant, με στόχο την αποκατάσταση του δημόσιου και πράσινου χαρακτήρα της παραρεμάτιας περιοχής και την απόδοση της στους κατοίκους της πόλης.

Το έργο αυτό, σε συνδυασμό με την ανάπλαση γύρω από τα φρεάτια του Αδριάνειου Υδραγωγείου, στην Ελ Αλαμέιν, και τις υπόλοιπες αναπλάσεις στην περιοχή, δημιουργεί μία ελεύθερη από αυτοκίνητα, πράσινη διαδρομή, η οποία θα συνδέει την περιοχή του Συνοικισμού απευθείας με το κέντρο του Χαλανδρίου.

Μπορεί να σας ενδιαφέρει:
Dimarxos_Roussos_2

Δήμαρχος Χαλανδρίου Σ. Ρούσσος: «Σε πλήρη αποδιοργάνωση της λειτουργίας των Παιδικών Σταθμών οδηγεί το προτεινόμενο σχέδιο νόμου του ΥΠΕΣ»

Την πλήρη αντίθεσή του στο προτεινόμενο σχέδιο του υπουργείου Εσωτερικών για τη λειτουργία και την στελέχωση των δομών προσχολικής αγωγής

Περισσότερα
Απρίλιος 2026
Δ Τ Τ Π Π Σ Κ
 12345
6789101112
13141516171819
20212223242526
27282930